Event Information
イベント情報
トヨタホーム岐阜では、住まいづくりを楽しんで頂けるイベントを定期的に開催しています!
ぜひ、お問い合わせください。
noform2 モデルハウス見学・分譲地見学 住まいづくり・工場見学・キャンペーン
シティステージ新加納Ⅱモデルハウス工事現場へ密着!!
【シティステージ新加納Ⅱモデルハウス】
現在モデルハウス2棟の建築工事を進めています。
地盤改良から完成までお家ができるまでの
現場進行状況をご紹介します!
普段見られない部分を見てみよう!
トヨタホームでは、より良い品質を実現するために、住まい全体の約85%を工場で生産しています。
自動車生産から受け継いだモノづくりの精神を基盤に、「トヨタ生産方式」を通して高品質の住まいをご提供。
天候に左右されない安定した環境で、「機械と人」で設計通りにつくることで、高い耐震性や長期の保証を実現します。
工場で生産されたユニットは、現地で据え付けられ、その日のうちに屋根防水工事まで完了します。
雨によって住まいが傷むことなく 品質を確保したまま仕上がります。
そんな工場から出荷された住まいが 仕上がっていく工程をぜひご覧ください。
【会場】シティステージ新加納Ⅱ
【所在地】岐阜県各務原市那加新加納町字村内3887番7
▼2/18(2号地・3号地 地盤改良工事)

▼2/18(2号地・3号地 柱状改良工事、スクリューフリクションパイル工法)

▼2/19 地盤補強(補強体天端レベル確認)

▼2/20地盤補強(補強体位置精度確認)

▼2/20(2号地・3号地 柱状改良工事)

▼2/21(2号地 丁張り・根伐り)

▼2/23(2号地・3号地 基礎丁張り、根伐り、砕石転圧)

▼2/26(2号地・3号地 基礎工事)

▼2/28(2号地 コンクリート打設風景)

▼2/28(2号地 コンクリート打設後養生)

▼3/1(3号地 基礎鉄筋組)

▼3/3(3号地 型枠工事)

▼3/5(2号地 型枠・脱型埋戻し)

▼3/6(2号地 地型枠建てこみ)

▼3/7(3号地 コンクリート打設風景)

▼3/7(3号地 コンクリート打設後養生)

▼3/10(3号地 型枠脱型)

▼3/11(2号地 足場組立・3号地 型枠脱型)

▼3/20(3号地 足場組立完了)

▼3/21(3号地 据付前)

▼3/12据付ライブ配信
▼3/12(据付完了)

▼3/13(3号地 基礎断熱工事)

▼3/13(3号地 給排水工事)

▼3/13(3号地 基礎断熱材貼り付け隙間充填)

▼3/13(2号地 足場シート貼り)

これからも随時更新してきます!ぜひチェックしてみてください★
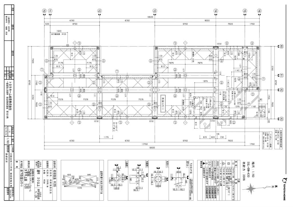
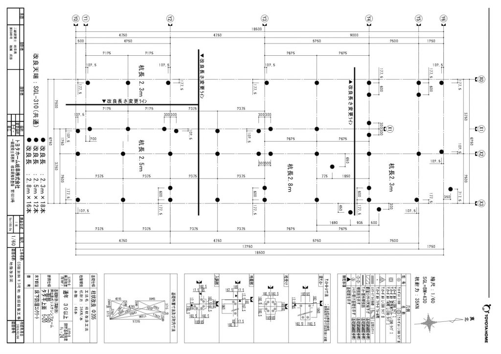
~2号地地盤調査報告書と基礎伏図・地盤改良図~

▼基礎伏図

▼地盤改良図

~3号地地盤調査報告書と基礎伏図・地盤改良図~

▼基礎伏図

▼地盤改良図

▼動画でも分かりやすく工程を解説しています!
▼新加納Ⅱのモデルハウスご紹介動画もご覧ください♪
ー周辺MAPー
【各務原市 那加 新加納町】会場
住所:各務原市那加新加納町3887-6













