Real Estate
不動産情報 - 中古住宅・その他
地図情報
現地写真
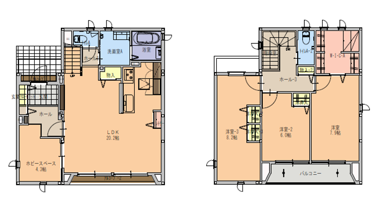
区画・間取り情報

- 号地
- 敷地面積
- 延床面積
- 販売価格
物件概要
土地情報
- 区画数
- 1区画
- 用途地域
- 第一種住居地域
- 土地面積
- 178.05m2
- 建蔽率
- 60%
- 私道負担面積
- 無し
- 容積率
- 200%
- 前面道路
- 北側道路6m 接道11.6m
- 地目
- 宅地
- 状況(現況)
- 上物有
建物情報
- 建築年月(工事完了予定年月)
- 2013年12月
- タイプ
- 3SLDK+W
- 主要設備
- トヨタホーム中古住宅(LQ)オール電化住宅、太陽光発電4.05KW、蓄電池9.8KW、薪ストーブ
- 取引条件有効期限
- 2026/5/31
その他
- 上水道
- 公営水道
- 下水道
- 公共下水
- ガス
- 東邦ガス(引込有不使用)
- 備考
- 景観法、地区計画(各務原南地区)、法22条区域、都市再生特別措置法、宅地造成等工事規制区域
お問い合わせ
- 連絡先1
- トヨタホーム岐阜株式会社
岐阜市市橋2丁目1番1号
058-274-8300
- 免許番号
- 岐阜県知事免許(11)第2593号
- 取引態様
- 専任媒介
- 情報更新日
- 2026/3/14
- 情報更新予定日
- 2026/5/31
※次回情報更新予定日までに成約されている場合があります。ご了承下さい。
資料請求・見学予約
下記のフォームに必要情報をご入力いただき、「送信」ボタンを押してください。※は必須項目になります。

























