Event Information
イベント情報
トヨタホーム岐阜では、住まいづくりを楽しんで頂けるイベントを定期的に開催しています!
ぜひ、お問い合わせください。
noform2
シティステージ岐阜羽島モデルハウス工事現場へ密着!!
【シティステージ岐阜羽島モデルハウス】
現在モデルハウス3棟の建築工事を進めています。
仮囲いから完成までお家ができるまでの
現場進行状況をご紹介します!!
【会場】シティステージ岐阜羽島モデルハウス1号地・2号地・3号地
【所在地】岐阜県羽島市福寿町浅平4丁目75,80-2,97,98
~モデルハウス完成予定図~
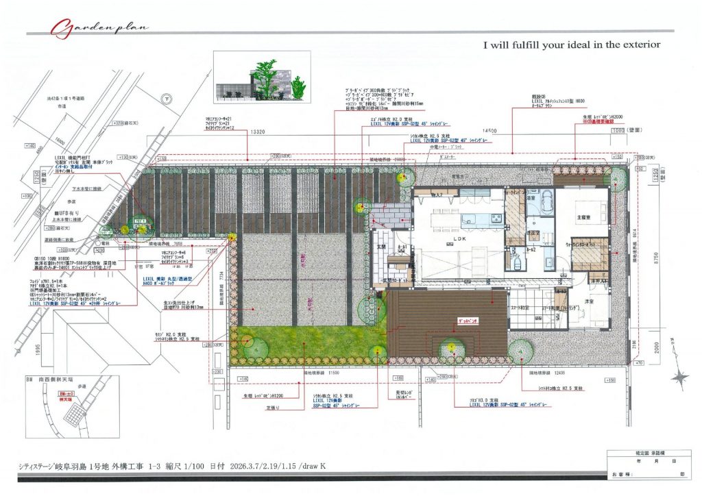
<1号地モデルハウス>


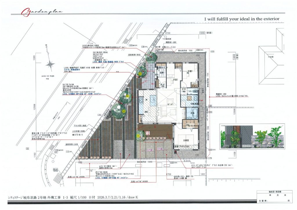
<2号地モデルハウス>


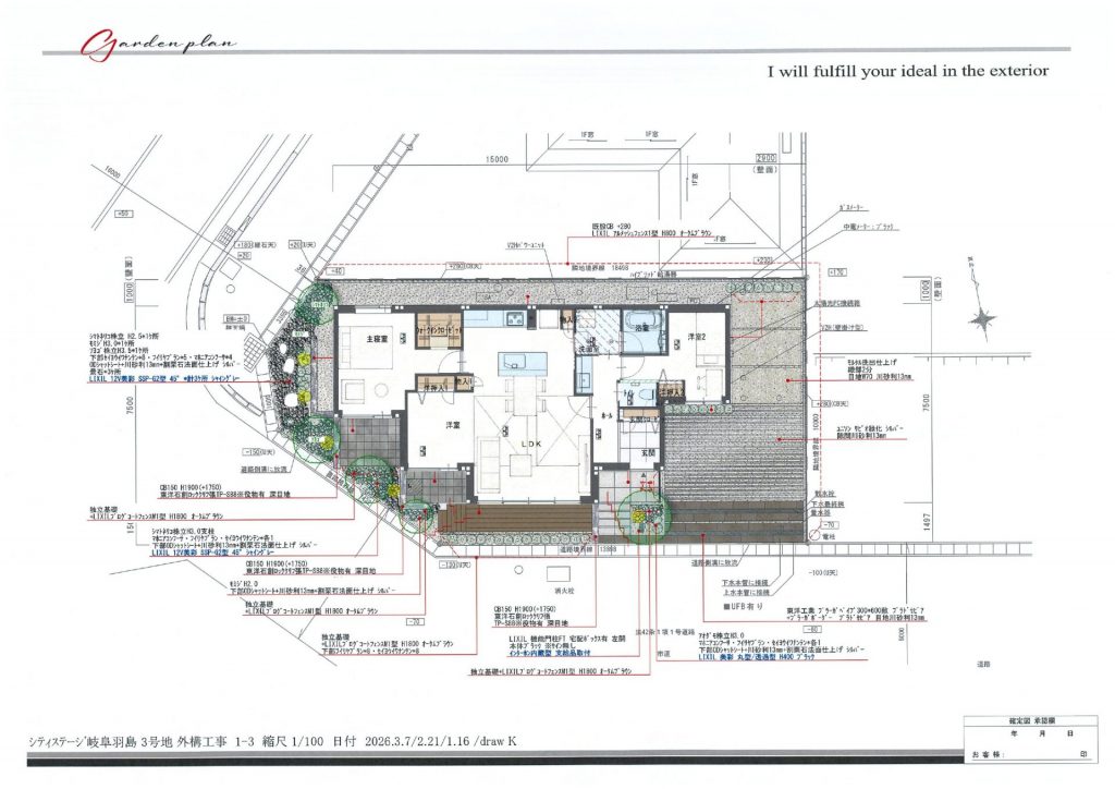
<3号地モデルハウス>


普段見られない部分を見てみよう!
トヨタホームでは、より良い品質を実現するために、住まい全体の約85%を工場で生産しています。
自動車生産から受け継いだモノづくりの精神を基盤に、「トヨタ生産方式」を通して高品質の住まいをご提供。
天候に左右されない安定した環境で、「機械と人」で設計通りにつくることで、高い耐震性や長期の保証を実現します。
工場で生産されたユニットは、現地で据え付けられ、その日のうちに屋根防水工事まで完了します。
雨によって住まいが傷むことなく 品質を確保したまま仕上がります。
そんな工場から出荷された住まいが 仕上がっていく工程をぜひご覧ください。
~工事現場進行状況~
▼1/11(仮囲い)







▼1/13~15(H型CPパイル工事)


▼1/15(掘削砕石転圧)

▼1/19(基礎 鉄筋組み→型枠建て込み工事)



▼1/22(コンクリート打設→養生)


▼1/28(基礎型枠脱型)

▼1/30(基礎型枠脱型)

▼1/31(埋戻し)

▼2/5(外部給排水工事)

▼2/6(事前設備工事状況)

▼2/10(据え付け工事作業前の朝礼KY活動の様子)

▼据付工事までの工事現場の様子
▼2/10据付ライブ配信


▲ユニット据付完了

▲妻壁取り付け

▲全館空調設備搬入


▲屋根取り付け
▲アスファルトルーフィング防水シート貼り付け
▼4/3(外構工事)


▼5/21

これからも随時更新してきます!ぜひチェックしてみてください★
▼動画でも分かりやすく工程を解説しています!
▼JR岐阜羽島駅からCS岐阜羽島までを歩いてみる動画もご覧ください♪
▼シティステージ岐阜羽島3号地ルームツアー動画もご覧ください♪













